Single Point-of-Entry

03d.jpg

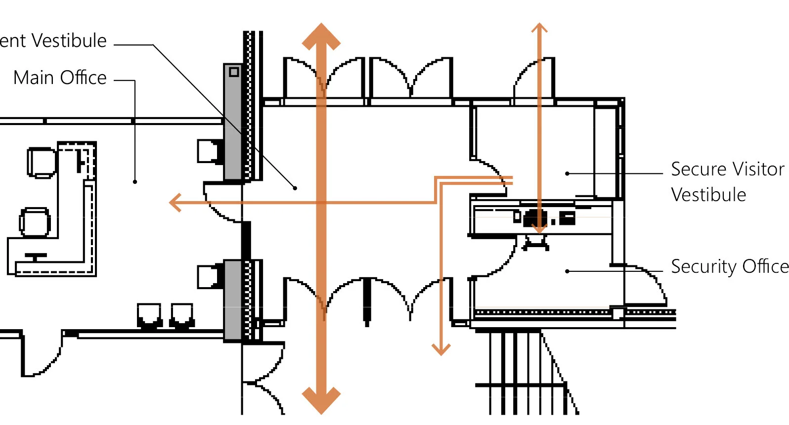
There are several approaches to single point entrance vestibules, all of which are implemented to achieve the same goals; slow down the issue into manageable increments, monitor who is coming and going, limit access as required and ultimately, reduce incidents.

We like to describe single point-of-entry by levels:

Level 1: Shared Entry and Direct Access – single shared student and visitor entrance vestibule with direct access to main lobby upon check-in and clearance.

Level 2: Separate Entry and Direct Access – visitors enter through a separate vestibule and check-in at the security office. Upon check-in, visitors enter the student vestibule with access to the main office or main lobby.

Level 3: Separate Entry and Indirect Access – visitors enter a separate vestibule and check-in with security. Upon clearance, visitors enter the main office, avoiding the student vestibule altogether.

Single Point-of-Entry

Previous
Previous

Riverhead Charter School

Next
Next

Meet our new team member, Nicole Epstein!